Kita Studierendenwerk

Stuttgart - Hohenheim

Machbarkeitsstudie

2019


Der bestehende eingeschossige Bau aus den 60er Jahren genügt nicht mehr den heutigen Anforderungen, eine Sanierung ist unrentabel.


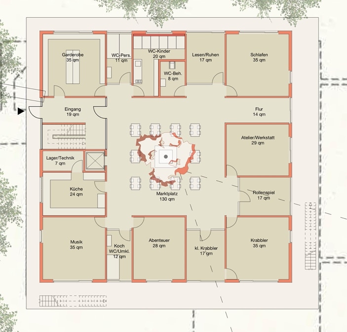
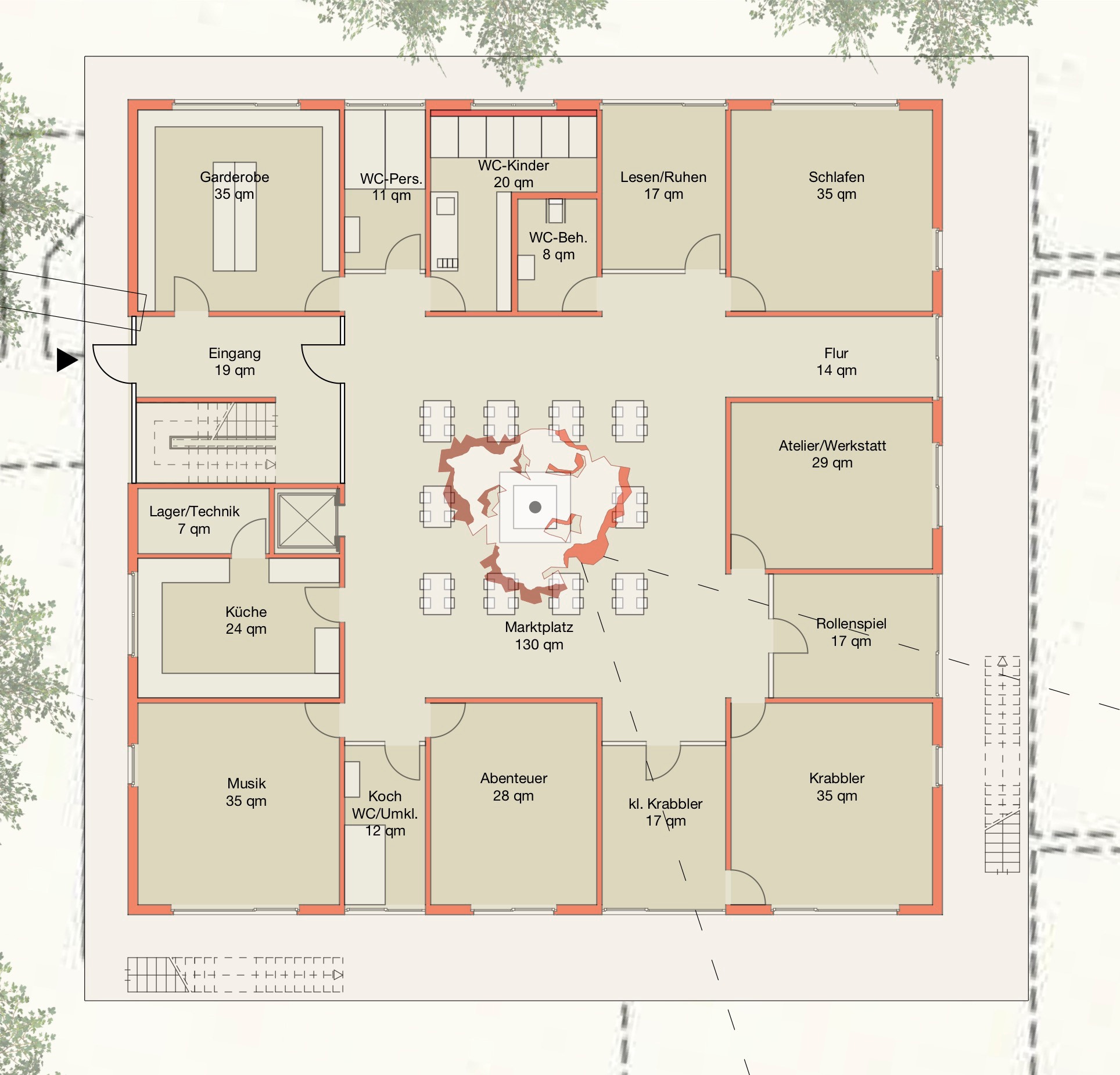
Der Entwurf sieht an gleicher Stelle einen quadratischen, zweigeschossigen Kita-Neubau vor, der Platz für insgesamt 80 Kinder bietet. Der Baukörper nimmt die Raumkanten der Nachbarbebauung auf, definiert sich aber als Solitär mit eigener Tektur. Ein Umlauf im ersten Geschoss dient als Rettungsweg, Spielfläche und Verschattungselement. Zwischen Umlauf und auskragendem Dach spannt sich eine Gewebe aus Metall.


Zentraler Raum jeden Geschosses ist der Marktplatz. Funktions- und Nebenräume gruppieren sich in loser Folge, mal als geschlossenes, mal als offenes Raumelement um diesen zentralen Bereich. Die raumhohen Verglasungen öffnen den Innenraum nach aussen, je nach Bedarf können Aussenflächen in den Betrieb integriert werden.


Konstruktion: Holzbau-Fertigteile, Holzverschalung, Dreifach-Verglasungen, Metalldeckung    


Auftraggeber: Konzept-e für Kindertagesstätten gGmbH